Page suivante
Page précédente
Valras-Plage (34350)

Local professionnel 37.1 m²

153 500 €
Réf VCO60001050

Le Pôle Santé ISCHIA, situé à proximité immédiate du front de mer à Valras-Plage, est un programme neuf dédié aux professionnels de santé. Cette Maison de Santé Pluriprofessionnelle regroupera médecins et praticiens dans un environnement moderne, favorisant la coordination des soins et offrant un cadre de travail optimal. Livraison prévue au 1er semestre 2027.

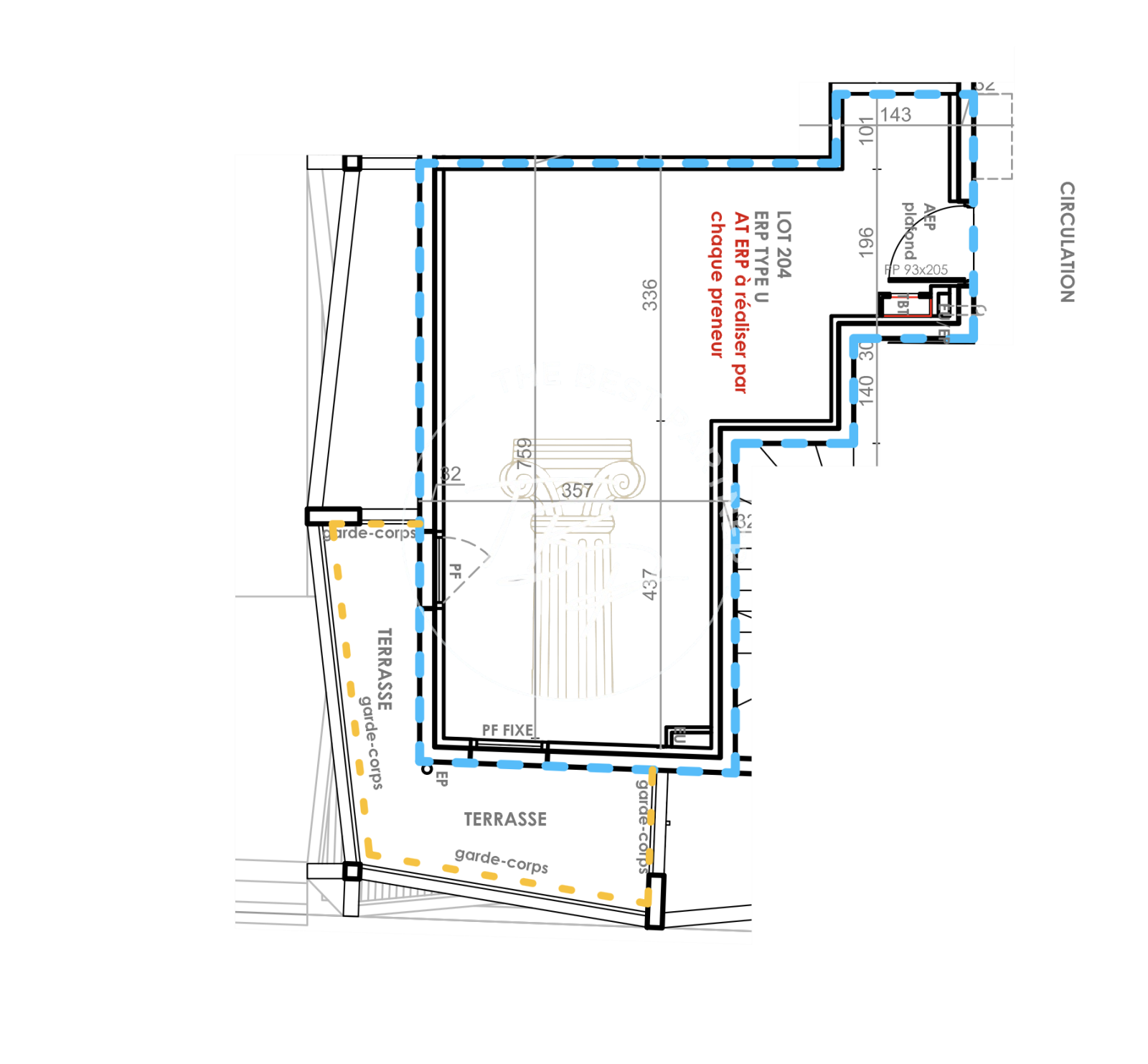
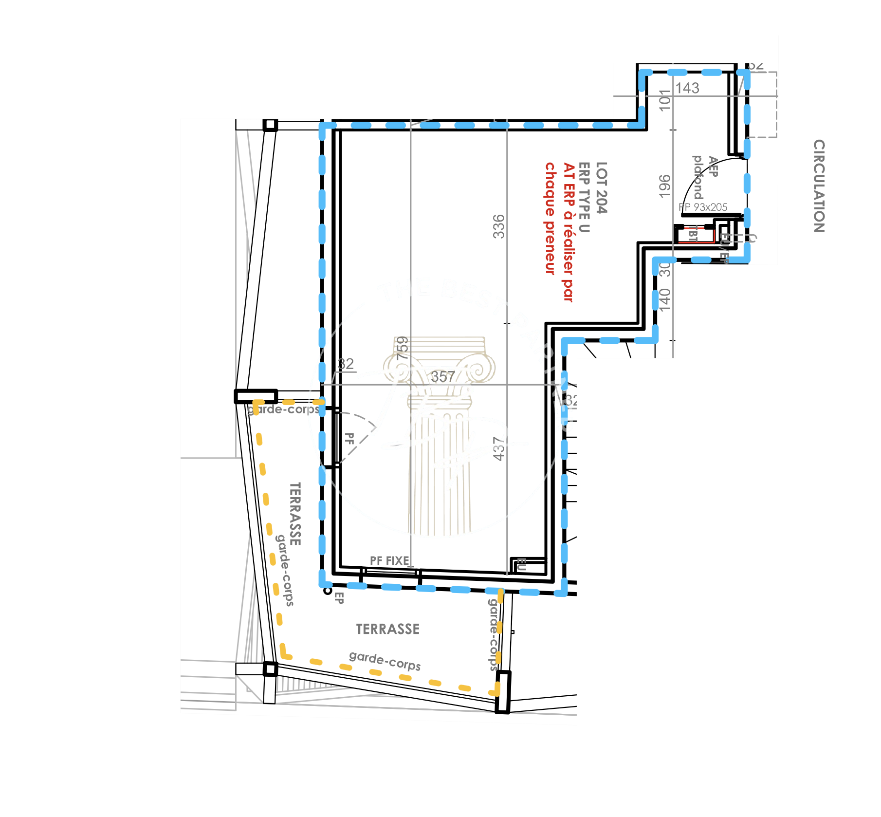
Le lot 204, situé au sein du pôle, propose un local professionnel neuf d’une surface utile de 37,10 m² et d’une surface brute locative de 42,73 m². Il bénéficie également d’une terrasse. À ce jour, aucune place de parking n’est attribuée. Ce cabinet offre un cadre de travail fonctionnel et attractif, idéal pour exercer dans un environnement médical dynamique, au cœur d’un emplacement recherché en bord de mer.

Bilan énergétique

Diagnostics énergetiques
A propos de ce bien Caractéristiques de ce bien
  • Surface 37,10 m²
  • 1 ascenseur

Financier

Informations financières
Prix de vente honoraires inclus 153 500 €
Les honoraires d'agence seront intégralement à la charge du vendeur  

Autour du bien

Découvrez le quartier
MyLocTravel Agence