Page suivante
Page précédente
Valras-Plage (34350)

Local professionnel 105.2 m²

1
429 000 €
Réf VCO60001045

Le Pôle Santé ISCHIA, situé à proximité immédiate du front de mer à Valras-Plage, est un programme neuf dédié aux professionnels de santé. Cette Maison de Santé Pluriprofessionnelle regroupera médecins et praticiens dans un environnement moderne, favorisant la coordination des soins et offrant un cadre de travail optimal. Livraison prévue au 1er semestre 2027.

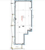
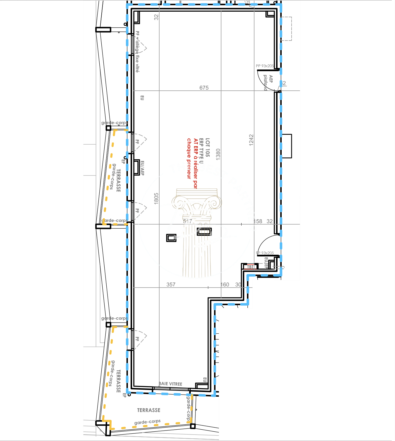
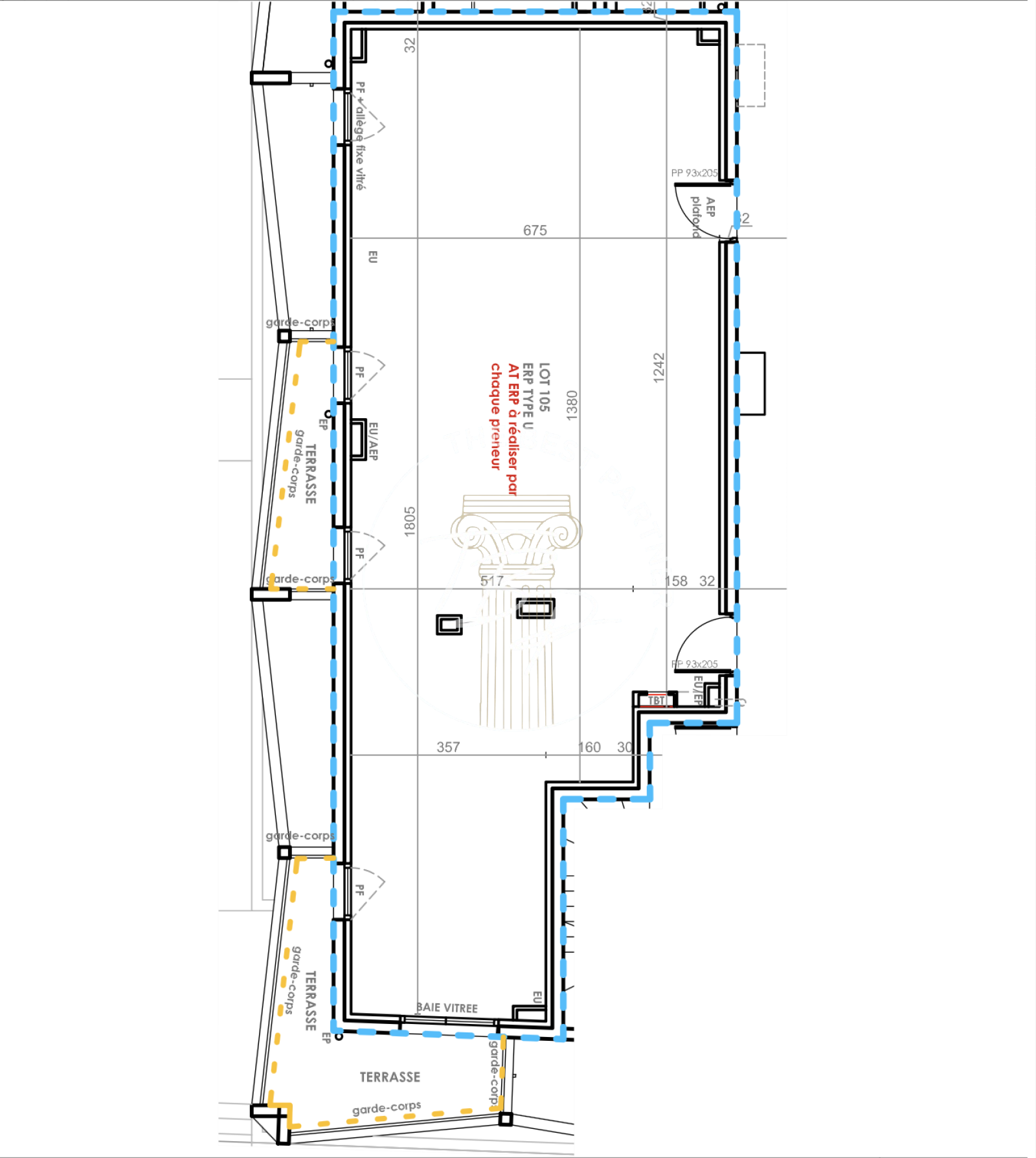
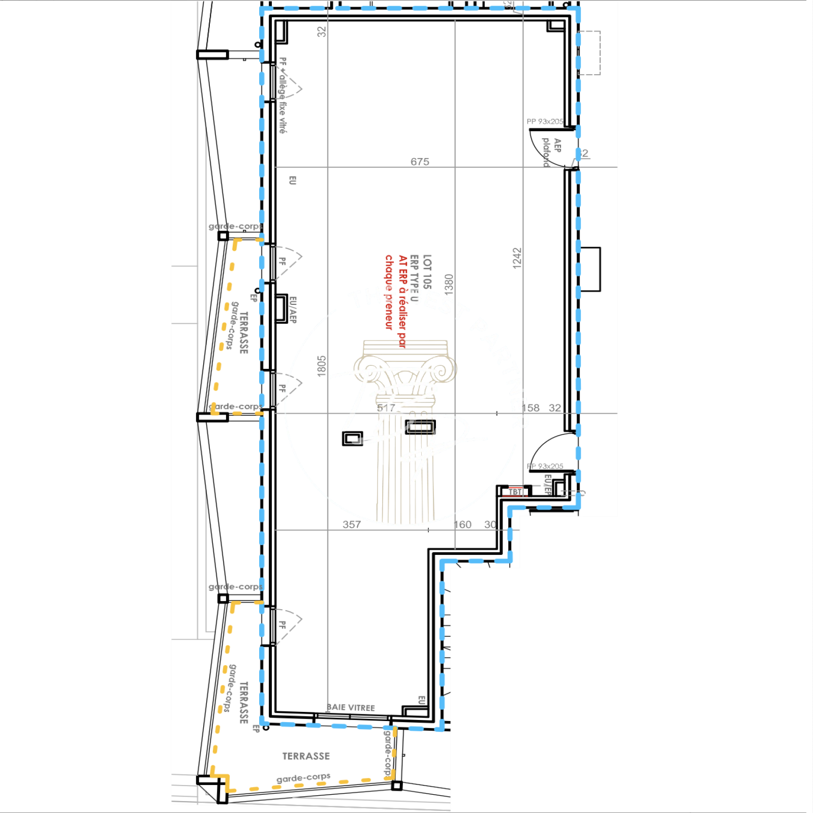
Le lot 105, l’un des plus grands locaux du pôle, propose un espace professionnel neuf d’une surface utile de 105,20 m² et d’une surface brute locative de 121,17 m². Il dispose également d’une place de parking. Ce cabinet spacieux offre un cadre de travail confortable, idéal pour développer une activité au sein d’un environnement médical dynamique, dans un emplacement recherché en bord de mer.

Bilan énergétique

Diagnostics énergetiques
A propos de ce bien Caractéristiques de ce bien
  • Surface 105,20 m²
  • 1 ascenseur

Financier

Informations financières
Prix de vente honoraires inclus 429 000 €
Les honoraires d'agence seront intégralement à la charge du vendeur  

Autour du bien

Découvrez le quartier
MyLocTravel Agence