Page suivante
Page précédente
Valras-Plage (34350)

Local professionnel 1 pièce(s) 51.75 m²

202 177 €
Réf VCO60001041

Le Pôle Santé ISCHIA, situé à proximité immédiate du front de mer à Valras-Plage, est un programme neuf dédié aux professionnels de santé. Cette Maison de Santé Pluriprofessionnelle regroupera médecins et praticiens dans un environnement moderne, favorisant la coordination des soins et offrant un cadre de travail optimal. Livraison prévue au 1er semestre 2027.

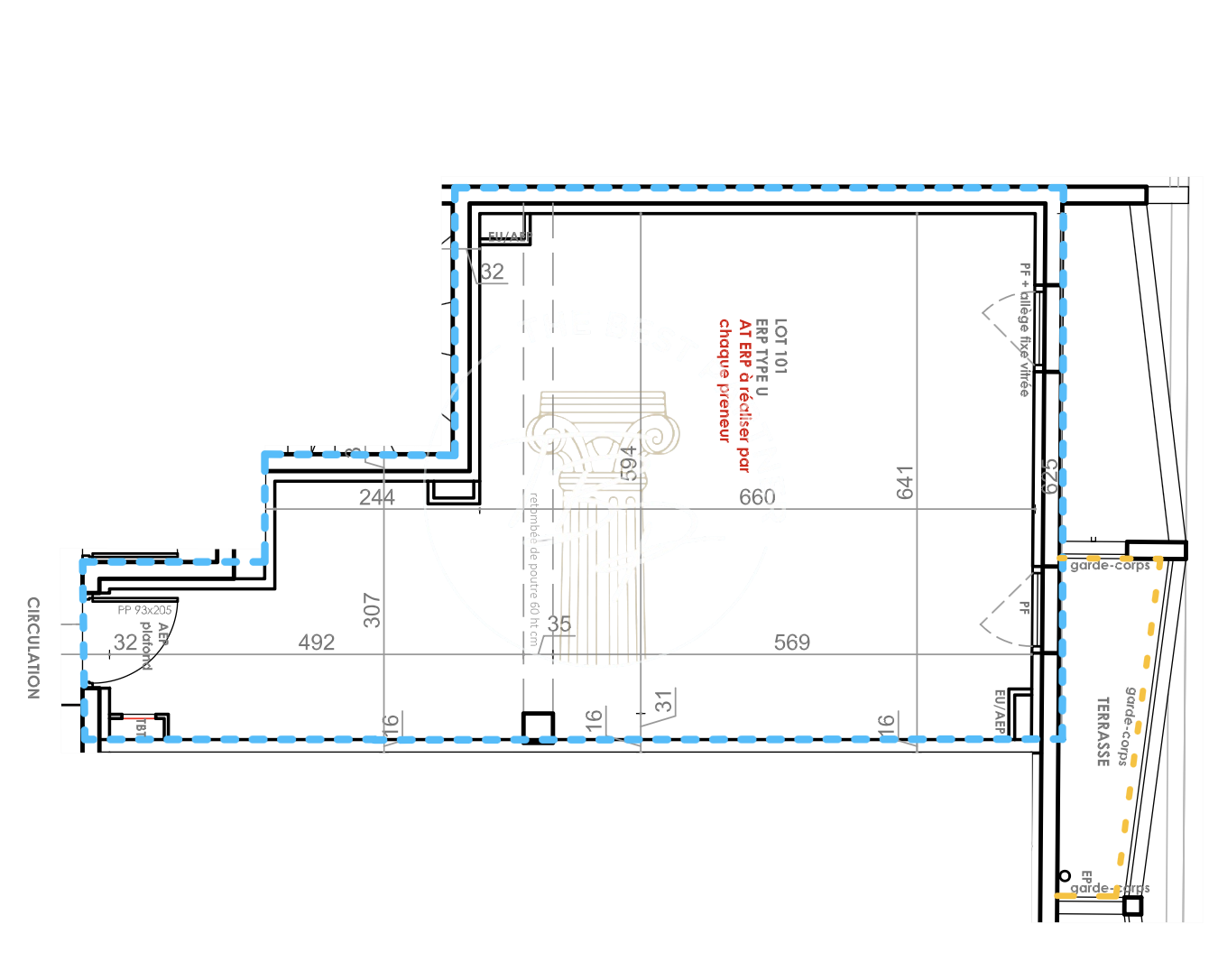
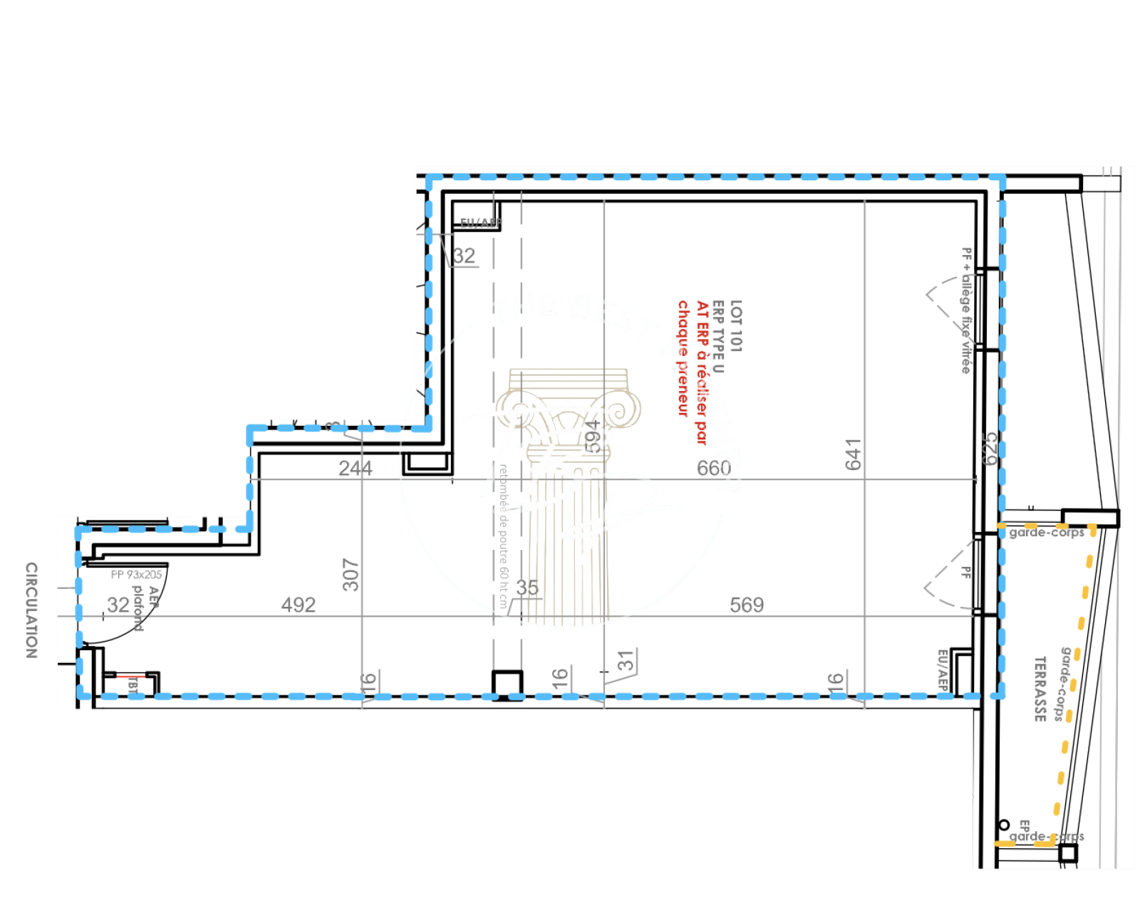
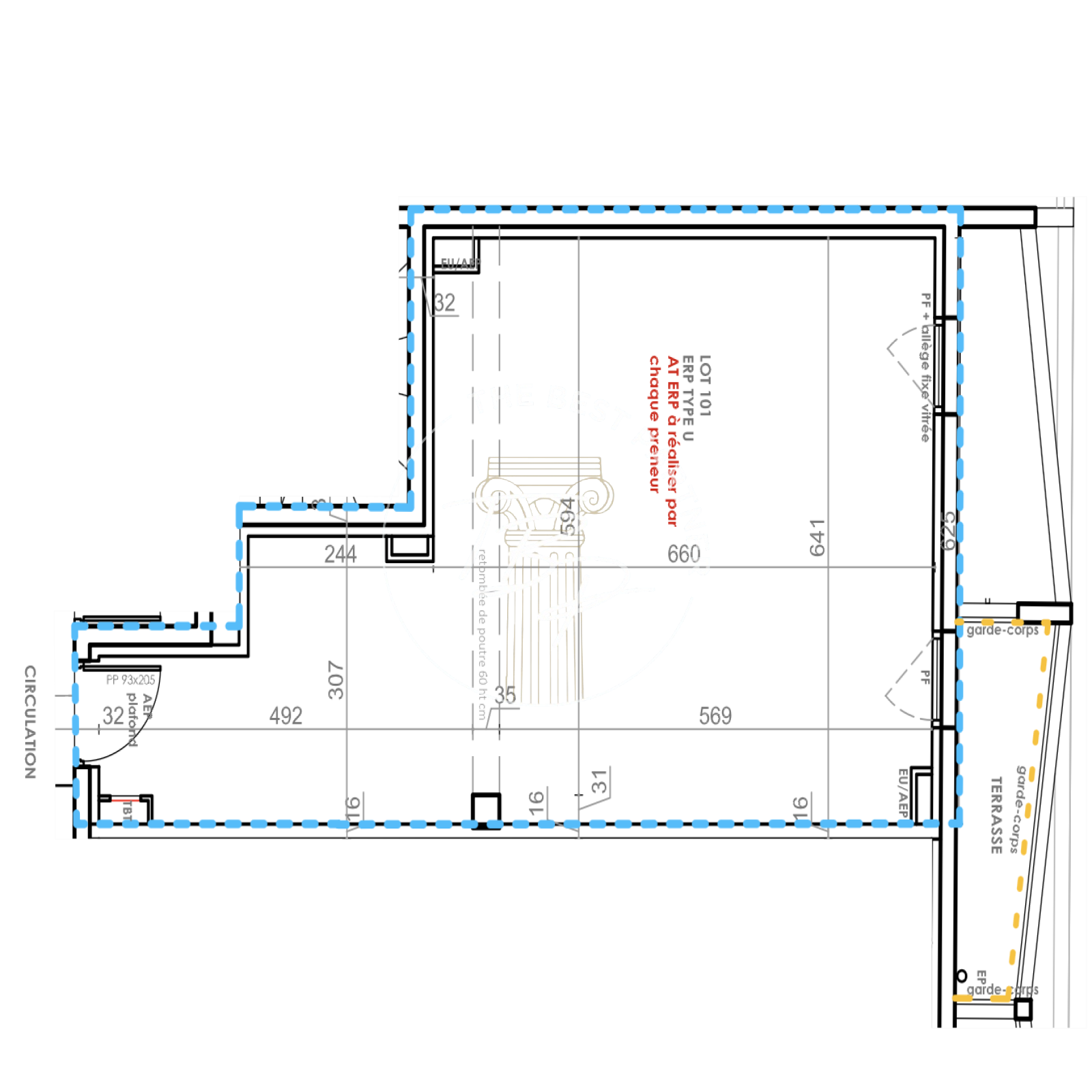
Le lot 101, situé au 1er étage, propose un local professionnel d’une surface utile de 51,75 m², complété par une terrasse d’environ 8 m² et une place de parking. Ce cabinet neuf constitue une opportunité idéale pour exercer au sein d’un pôle médical dynamique, dans un emplacement attractif en bord de mer.

Bilan énergétique

Diagnostics énergetiques
A propos de ce bien Caractéristiques de ce bien
  • Surface 51,75 m²
  • Chauffage collectif : convecteur (autre)
  • 1 étage(s)
  • 1 ascenseur

Financier

Informations financières
Prix de vente honoraires inclus 202 177 €

Autour du bien

Découvrez le quartier
MyLocTravel Agence