Page suivante
Page précédente
Valras-Plage (34350)

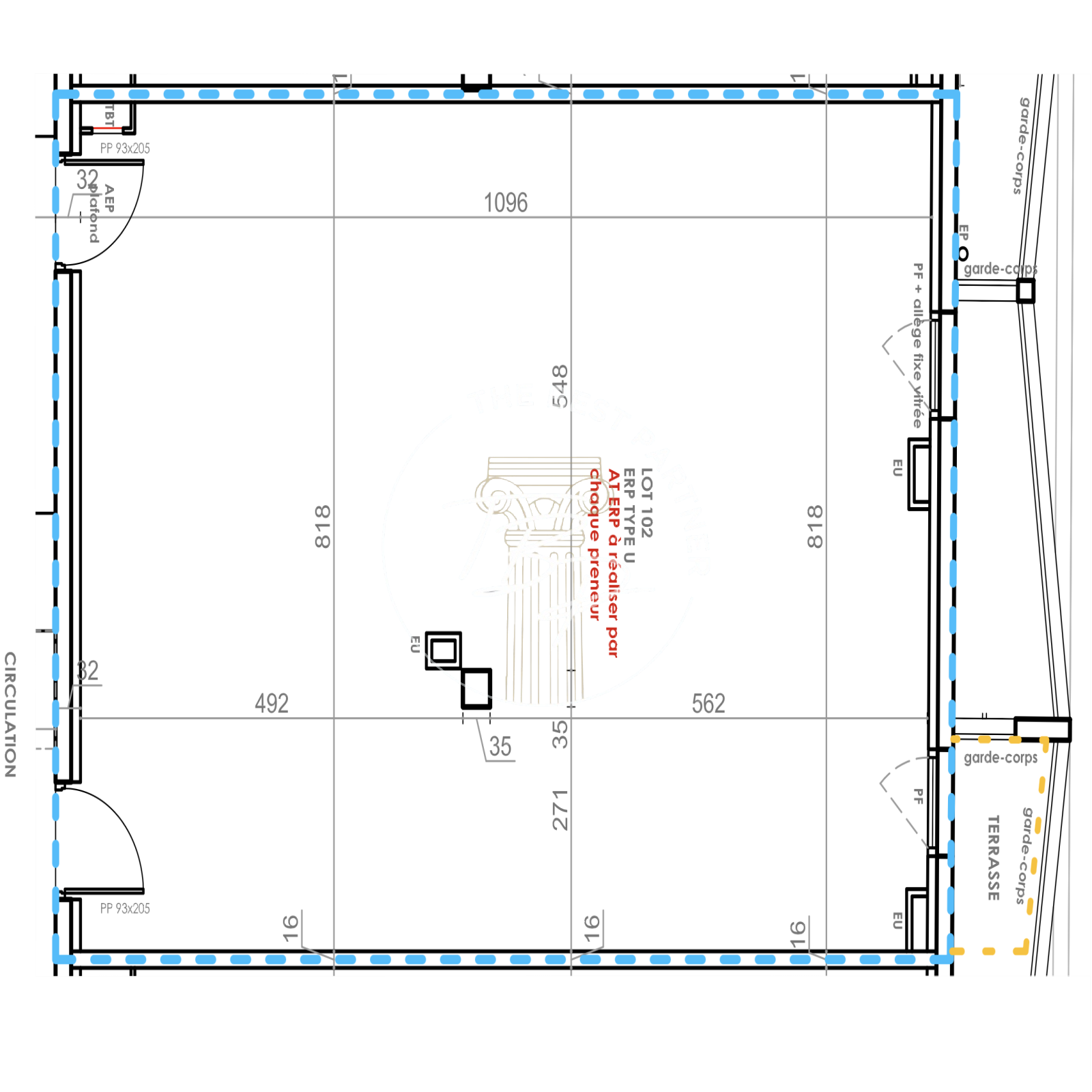
Local professionnel 102.48 m²

Terrasse
365 792 €
Réf OIM60001037

 

Au sein du programme neuf ISCHIA, situé en front de mer dans un cadre idyllique, découvrez une opportunité rare d’acquérir un local professionnel en vente sur plan (VEFA), intégré dans un pôle médical, parfaitement adapté aux activités médicales et paramédicales : cabinet infirmier, kinésithérapeute, ostéopathe, psychologue, médecin, orthophoniste, etc.

Lot 102 – R+1

  • Surface au sol exploitable : 102,48 m²

  • Terrasse privative incluse (selon plan)

  • Place de parking privative incluse

  • Implanté au sein d’un pôle médical

  • Environnement calme et qualitatif, idéal pour l’accueil de patients

  • Bâtiment neuf répondant aux normes en vigueur

Ce local spacieux et fonctionnel offre un cadre de travail exceptionnel, alliant visibilité, accessibilité et synergie professionnelle grâce à la présence d’autres praticiens au sein du pôle médical.

Prix de vente : 365 792 € (TVA 20 % incluse)

Investissez dans un emplacement premium pour développer votre activité dans un environnement attractif et valorisant.

Dossier complet et plans sur demande.

 
 
 
 

Bilan énergétique

Diagnostics énergetiques
A propos de ce bien Caractéristiques de ce bien
  • Surface 102,48 m²
  • carrez 88,98 m²
  • construit en 2027
  • 1 parking(s)
  • 1 étage(s)
  • 1 ascenseur
  • terrasse
  • accès handicapé

Financier

Informations financières
Prix de vente honoraires inclus 365 792 €
Les honoraires d'agence seront intégralement à la charge du vendeur  

Autour du bien

Découvrez le quartier
The Best Partner / MyLocTravel Agence